C'est pourquoi la construction d'un bunker peut être une solution envisageable. Dans cet article, nous vous proposons un guide étape par étape pour construire votre propre bunker. Étape 1 : Planification. La première étape pour construire un bunker est la planification. Il est important de déterminer l'emplacement idéal pour votre.. 11. Préparez vos provisions. Après avoir appris tout ce que vous devez savoir sur la construction d'un bunker, vous pouvez enfin vous concentrer sur la préparation de vos provisions. Faire le plein de fournitures est la dernière étape que vous devez accomplir avant d'utiliser votre bunker.

Survival Bunker Floor Plans floorplans.click

Military solutions for underground bunkers and above ground structures. Military bunkers

Floor Plan Underground Bunker Plans tech blog

Survival Bunker Floor Plans floorplans.click

Bunker Complex The General Rising S Company Bunker, Underground bunker, Underground bunker

Survival Bunker Floor Plans floorplans.click

Survival Bunker Floor Plans floorplans.click

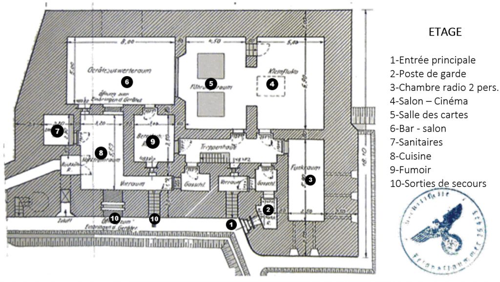
plans de bunker sur le mur de l'Atlantique

This is an absolutely amazing design for an amazing doomsday bunker! Fallout shelter, Bomb

DIY Bunker Plans SHTFPreparedness Bunker, Underground homes, How to plan

How to build an underground bunker

Underground Bunker Floor Plans Bomb Shelter Survival Shelter

How To Build An Underground Bunker By Hand

How to Build a Bunker Survivalist Guide to Building an Underground Shelter Prepper Universe

Concrete Bunker House Plans Underground bunker, Underground shelter, Doomsday bunker

Typology of bunkers

bunker Plan dessiné par jeanlyon8

Location bunker en bretagne Plan du Bunker L479 à St PABU 29830.

US underground bunkers Sales hike to withstand nuclear war The Middle East Observer

Plans de construction d'un abri antiatomique Guide de survie
Choisir son emplacement. Avant de se lancer dans la construction de votre bunker, il est essentiel de réfléchir à l'emplacement idéal. Le terrain doit être constructible d'après le PLU et vous devez en être le propriétaire. Pour les terrains dit "agricoles" ou "naturels" d'après la designation du PLU, une étude plus affinée est.. AMESIS est une entreprise Franco/Suisse de bâtiment générale spécialisée dans la construction d'abris antiatomiques-bunkers NRBC-E -pièces sécurisés en béton armé de haute sécurité depuis 1989 à Genève en Suisse et depuis 2012 à Menton en France. Ouvrages avec certifications NRBC-E reconnues par les autorités nationales.